434: Room for one more?
A year in the "before picture" house.
Rooms is Magasin’s interiors vertical featuring room-by-room shopping, furniture and decor wishlists, and renovation projects at home in Brooklyn.
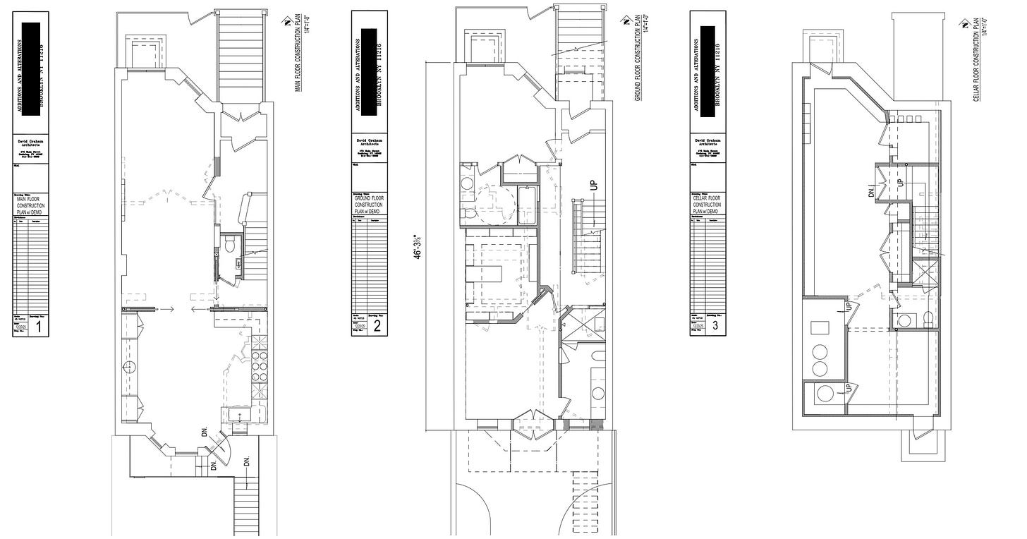
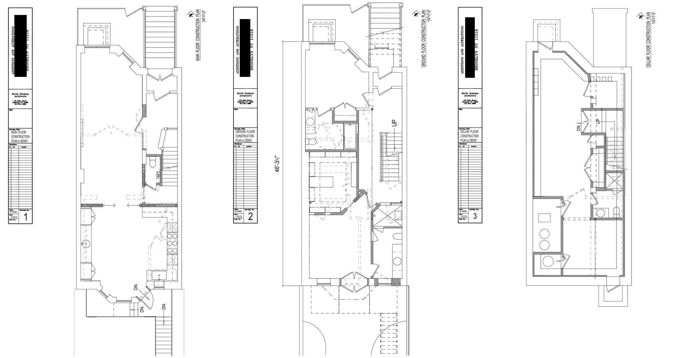
I was warned when I started telling people about our renovation plans that everything would take longer than expected, but what I didn’t account for was that including the “getting started” part, too. We’ve been living in our future project of a Bed Stuy brownstone for 15 months and have yet to break ground. Or even file permits.
But! Our floor plans are firming up, including new and exciting ideas previously inconceivable to us (turning our two-story into a three-story whaaaat), and hopefully we’ll be tearing down drywall and ripping out old cabinetry by spring. What’s happened up until this point is the practice of getting comfortable while sitting tight.
This ROOMS is kind of a bridge…check in with me in a few months and together we’ll measure my stress levels about having to relocate my whole closet for a gut reno.
Bed
Buying
We were mattress-on-the-floor-ing, which is fine until it’s not. Whole bed game got re-sorted. We got this linen-covered frame from Thuma for our own bedroom with an angled, padded headboard that makes all the difference. For the guest room, we got this other Thuma frame that gels with the other wooden midcentury stuff and, most importantly, has a whole storage system that it can be outfitted with: gliding underbed drawers on both sides where I can neatly store table linens, my worrisome backlog of skincare, candles, etc.
The piece de resistance in the setup is our new Ostermoor mattress. It’s made the old way—with coils and hand-tufting, 100% organic materials (it doesn’t even use glue)—by a 173-year-old New York company. They look about the same now as they did then, with pajama-like blue and white stripes and piped edges, except instead of horse hair they’re built with open cell-structure latex. It was firmer than I was used to, after many years of sleeping on internet beds, but I got accustomed to that pretty quickly, and now my back feels sooooo good. I also put my pillows and duvet insert in the hands of Ostermoor and couldn’t be happier.
Sheets-wise, I have narrowed it down to two brands as my end-all-be-alls: Boll & Branch for percale, and French Presse, an Amagansett-based confirmed Olsen go-to, for linen—these have a break-in period, so I ran them through the wash several times before use. Atop those, a rotation of bed covers from Tekla (they don’t seem to make them anymore), Parachute, and an excellent linens store in Lisbon where the prices are good enough to turn you into an importer-exporter.
Kitchen
Buying
A bunch of devices, it turns out. A whole reimagined coffee setup from Fellow: This coffee maker (I bought back precious morning time spent manually progressing each pour over) and this grinder. Every cup is now identically good. I use 16 grams of Maru beans for each 1.5 cup serving. (If you came to the Magasin party at Pierre Augustin Rose, this was what we included in the giveaway, blended with cardamom.) The other robot we got is a Dreame automatic vacuum and mop (a Roomba with wet pads, essentially). Changed the absolute game here. It’s just always clean now!
Small things-wise, I’m appreciative of the new Service Projects wares in my life: these little diner-esque coffee cups with saucers and these family heirloom-like decorative-rim plates. This brand really knows what it’s doing.
Building
Yet to be installed, but we have this Louis Poulsen pendant light on deck for when the big changes take place.
Living
Buying
Early adventures in LiveAuctioneers resulted in the purchase of a Ruhlmann armchair (similar to these) and a Billy Haines shell and bamboo-legged brass coffee table (pretty close to this) before the order of operations of the looming renovation dictated some restraint.
Elsewhere, a nice tableau that came together between this Hetta side table and this large Alice Lane vase.
Wishlisting
I’ve been inspired by the many living rooms in The Dakota, the UWS residential building where Yoko Ono lived. The strange and clearly lived-in layouts with lifelong-collected furniture strewn across multiple living areas with tons of negative space. I’m gonna be beating the Eclectic drum hard in 2026.
Dining
Buying
The pedestal I bought from Zara Home for our gift guide shoot now lives in the corner, holding our iron Buddha hand (they make a great pair). Two of Frama’s Chair 01 for each head of our refinished Alvar Aalto dining table (the others are some fabulous wooden folding ones from an upstate antique store).
Bath
Buying
Not quite in the bathroom, but as body-centric non-furniture pieces that roam around the house, it seems appropriate to categorize them here. Like our ever-furthering “smart” kitchen, we’ve been slowly acquiring self-care devices. The HigherDose Infrared PEMF Pro Mat gets used a few times a week. You can just lie on it and it relaxes you. You don’t have to believe me but it works. Alongside that, the Full Body Red Light Mat from the same brand, which I will burrito myself inside for 360º exposure. If I’m feeling nasty I’ll also throw on the Monastery LED mask, too.
Wishlisting
Maha Alavi finishes. Planning to upgrade the bathroom hardware with white brass towel hooks, hanging bars, and toilet roll holder.
Basement
Building
The big shake-up in our plans has been the introduction of a finished basement concept…like, to increase the ceiling height down there by digging below the existing foundation, seal up the exposed stone walls, install a half bath, and conjure an extra sleeping area and home gym out of thin air. We’ll see how this exploration pans out, but obviously it’s got its draws. The WaterRower could live there.
Outside
Building
There was a whole front door saga that I won’t bore you with, but a year into our efforts to replace the rotting wood one that we inherited, we finally have a new pair greeting us at the entrance. Stained pine, beveled glass. Work yet to be done—side paneling in the entryway and a new threshold stone. Getting rid of that damn wiring pipe.
Wishlisting
Our yard doesn’t know it yet, but it’s getting a sauna soon. I wouldn’t say they’re “cheap” but the fact that you can get one for under $4k puts it at the lower end of the renovation cost spectrum.
Magasin may earn some money if you make a purchase through one of the links above.
Follow us on Instagram at @magasin.ltd.









Loved this! What’s the name of the sheets store in Lisbon @laura reilly ?
@laura reilly immaculate as usual. Where’d you find the headboard?